Set within the tightly held rural landscape of Londrigan, in the heart of North East Victoria, this outstanding 217-acre (87.8-hectare) estate presents an exceptional opportunity to secure a property where historic character, refined country living and first-class agricultural infrastructure come together seamlessly.
Beautifully improved and meticulously maintained, the property offers the rare combination of a magnificently restored period homestead and extensive, purpose-built cattle management facilities, making it equally suited to premium rural living, productive grazing or a boutique livestock enterprise.
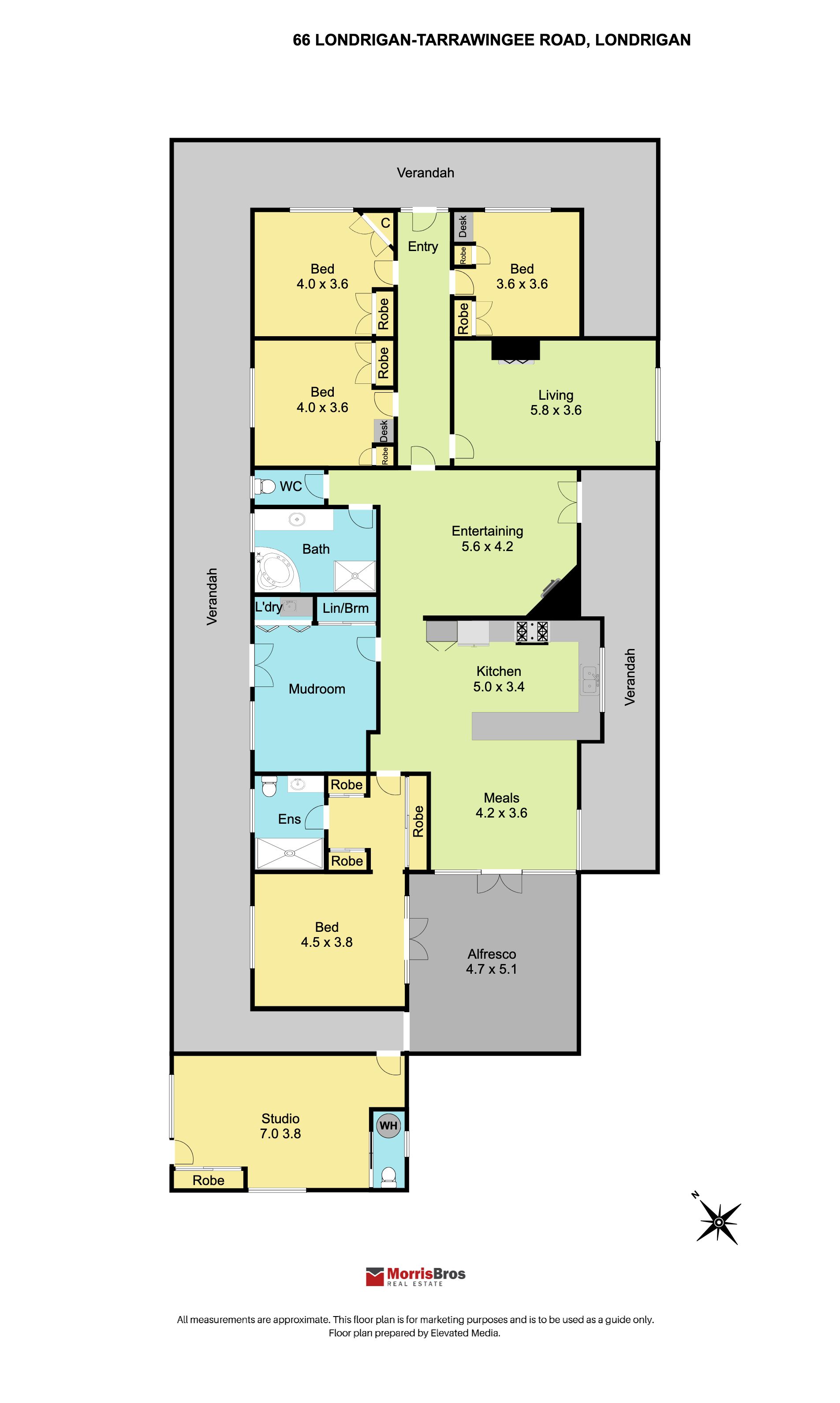
Magnificent Refurbished Period Homestead
At the centre of the estate stands a stunning five-bedroom period homestead, extensively refurbished to an exceptional standard while preserving the elegance and charm of its heritage architecture.
Encircled by a classic full return verandah, the residence overlooks established gardens, sweeping lawns and mature shade trees, creating a tranquil and private setting that perfectly captures the essence of refined country living. Inside, the home is defined by generous proportions and timeless character.
A wide central hallway welcomes you with soaring ceilings, ornate cornices and beautifully restored cedar-framed windows, allowing natural light to flow throughout the residence.
The home offers five spacious bedrooms and three expansive living areas, including a formal dining room and elegant living room, ideal for entertaining or relaxed family living.
The light-filled modern kitchen is beautifully appointed and flows effortlessly into a comfortable family living area, forming the true heart of the home.
Two stylish modern bathrooms service the residence, including one featuring a luxurious spa, providing a touch of indulgence within this elegant country retreat.
Outdoors, the homestead grounds are equally impressive. Auto-watered gardens, shaded lawns and established trees create a picturesque setting, complemented by a private chlorinated swimming pool, perfect for warm summer days.
Exceptional Livestock Infrastructure
The property has been thoughtfully developed with highly functional and specialised cattle management infrastructure, designed to support efficient and professional livestock operations.
Two substantial American-style barns with high-clearance access form the backbone of the operational facilities. Each barn features three roller doors with a central high-clearance opening, providing excellent accessibility for machinery and livestock movement.
Integrated with one of the barns is an extensive modern cattle yard complex covering approximately 1,400 m², delivering a well-designed and highly efficient handling system.
Both barns are equipped with 17 rooftop solar panels, contributing to the property's energy efficiency and operational sustainability.
Additional improvements include a raised former shearing shed, thoughtfully refurbished to accommodate cattle auctions, livestock handling and potential venue for functions and events, along with a large hay shed and additional outbuildings supporting the enterprise.
Productive Land & Reliable Water
The property’s 217 acres of productive grazing land are well organised into 13 paddocks, all benefiting from excellent fencing and strategically positioned water points.
A renowned on-property well provides a reliable water source, ensuring year-round supply for livestock and property needs.
With first-class access and an efficient paddock layout, the property offers excellent functionality for cattle management while maintaining the natural beauty of the landscape.
A Rare Rural Opportunity
Properties of this calibre are seldom offered to the market in North East Victoria.
Combining a beautifully restored period residence, established gardens, productive grazing country, and extensive modern cattle infrastructure, this exceptional estate delivers a truly complete rural offering.
Whether pursued as a prestigious country lifestyle property, a productive cattle enterprise, or a multi-generational rural holding, this remarkable Londrigan property represents a rare and compelling opportunity in one of Victoria’s most sought-after rural regions.
Contact Brett Goodwin on 0408 574 966 for all enquiries!
Features
- Air Conditioning
- Open Fireplace
- Split-System Air Conditioning
- Split-System Heating
- Fully Fenced
- Secure Parking
- Shed
- Swimming Pool - In Ground
- Built-in Wardrobes
- Floorboards
- Inside Spa
- Rumpus Room
- Workshop
- Solar Panels
- Water Tank





































































































