Collyn-Dale House
The first street trees and gardens established in the western parts of Collyn-Dale Estate are now at their autumn perfection and beautifully complimenting Des and Wilma Chicks outstanding residential precinct legacy to Wangaratta.
The highly respected couple worked together over many years in pursuit of excellence in all their endeavours. Collyn-Dale was perhaps the first of the very best professionally and quality designed estates in the city with Colleen Close in particular representing Des and Wilma’s highest aspirations.
Located at No.7 in the close on a unique 1500m2 promontory site with a 70 metre panoramic frontage overlooking the Three Mile Creek is Des and the late Wilma Chick’s own home. Constructed just 18 years ago the three bedroom plus study and three living room home is the epitome of quality and design.
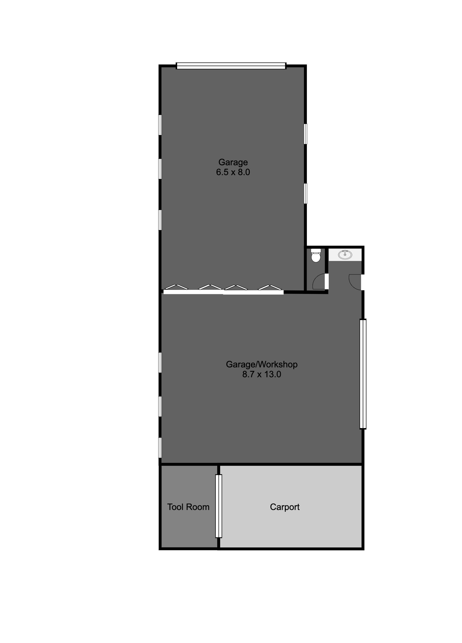
In addition and to accommodate Des’ precious antique vehicles, they constructed a detached and superb lock up brick garage with capacity for eight vehicles. A further carport and huge double garage at the house are additional. With panel lift doors the huge secure garaging spaces which are immaculately presented provide exciting options for alternate use of the ‘residential quality building’.
The dwelling design is outstanding, taking full advantage of the elevated overviews of the creek reserve with a massive river red gum providing a focal point. Every room of the home is light filled and along with the extensive creekside verandah enjoy magnificent views.
It is a given that this master built home comes with extensive built-ins, walk-in pantry, ducted vac system, new gas HWS and garden sprinklers.
The three spacious living areas, a master bedroom ensuite with walk in robe give the home unparalleled appointments and comfort. Including ducted evaporative cooling, ducted gas heating and three independent hot water services which service both the kitchen, workshop and main home.
Not only are the street trees now at their best but also the garden bordered by orderly fruit trees and landscaping.
We venture to say there is nothing quite like No.7 Collen Close in the City. It represents an enduring and great legacy created by Des and Wilma in their quest to always aim for and achieve the best.
Please contact Brett Goodwin on 0408 574 966 for more information or a private inspection!
Features
- Ducted Cooling
- Ducted Heating
- Outdoor Entertainment Area
- Remote Garage
- Secure Parking
- Built-in Wardrobes
- Ducted Vacuum System
- Rumpus Room
- Study
- Workshop































































